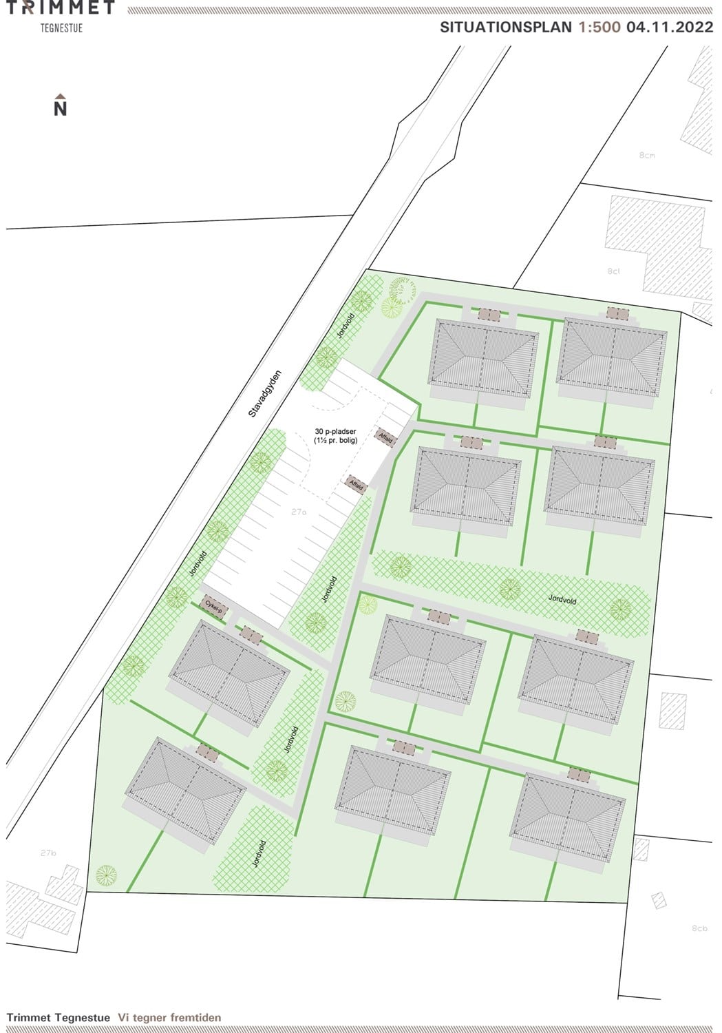
20 boliger – 10 dobbelthuse | opførelse forventes 2026-2028

Stavadgyden, Næsbyhoved broby

Planudvikling  forventes påbegyndt ultimo 2024/primo 2025.

10.000 m² landbrugsejendom med tilhørende jord, skal transformeres til byjord, nærmere bestemt – Tæt/lav-byggeri, som benævnelser på de typer boliger vi agter at opføre.

Det kræver under normale omstændigheder at man i samarbejde med byplan udarbejder en lokalplan, men da området er placeret uden for “byskiltet” kræver det at området er en del af kommunens kommuneplan og vision for fremtiden

Projektet på Stavadgyden er en del af den nye kommuneplan som er gælder ind til 2032, men er desværre i 3.prioritet, hvilket betyder at med den pt. gældende lovgivning er det tidligst muligt at få udarbejdet en lokalplan for området efter år 2028.

Dette har vi udfordret ved at fremsende et høringsvar, hvor vi ønsker at få ændret i prioriteringsrækkefølge, således at det forhåbentligt bliver muligt at udarbejde lokalplan allerede i 2025. Årsagen til at dette er muligt, skyldes at politikerne i Odense kommune har åbnet muligheder for at ændre i prioritetsrækkefølgen på boligprojekter inden for kommunegrænsen, da behovet for netop tæt/lav- byggerier i forstæderne til Odense er en blevet mangel vare.

Du kan læse mere om bystrategi og rækkefølgeplan på nedenstående link:
Bystrategi 2023 – Odense Kommune

Fakta

  • 20 boliger á 98m², med egen terrasse og have
  • 10 dobbelthuse, placeret 2 og 2, ugenert af hinanden
  • Eget depotrum med lys og strøm
  • Egen P-plads (alle forberedt til ladestandere/elbiler)
  • Renovationsøer med skjulte affaldsmollokker. – 10 fraktioner
  • Pæn beplantet afskærmning mod vejen, således man bor sikker, ugenert og støjfri
  • Overdækket cykelparkering ligeledes med lademuligheder til el/lad-cykler
  • Forbrugsafgifter afregnes direkte med forsyningsselskaberne
4240 8002 Send mail
Følg med på Facebook
Trimmet Ejendomme ApS