38 lejemål
21 bygninger
4 byer
Samlet 4046 m² boligmasse
Igangværende projektudvikling
ca. 4000 m²
Skovdrift 9308 m²
NY
Velkommen til Trimmet Ejendomme ApS
Opførsel af boliger til udlejning
- rækkehuse og lejligheder på fyn
Drømmer du om den perfekte lejebolig, og er tiden kommet, hvor drømmen skal udleves? Så er du kommet til det rette sted.
Trimmet Ejendomme ApS er et ejendomsselskab med primært nybyggede rækkehuse i porteføljen. Vi projektudvikler, bygger og lejer boliger ud på Fyn, omkring Odense.
Trimmet Ejendomme ApS er et datterselskab af arkitekttegnestuen Trimmet Tegnestue ApS, som i mere end 15 år har projekteret flere hundrede boliger i hele landet. Denne erfaring og viden er DNA´et i Trimmet Ejendomme ApS. Beliggenhed, disponering af grunden, Indretning, tilgængelighed, materialevalg og kvalitet, er nøje gennemtænkt i hver eneste bolig vi opfører og lejer ud!
BROBYVEJ 6A->6N, NÆSBYHOVED BROBY
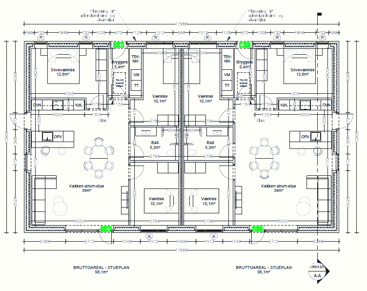
6 Dobbelhuse, altså fire 12 boliger på 98m².
Boligerne ligger helt ugenert for naboer og både haven og terrassen er placeret helt korrekt i forhold til solens orientering.
Boligerne er placeret forskudt for hinanden, samt i flere niveauer, hvilket gør man bor privat og ugenert.
BROBYVEJ 4 & 4A-4D, NÆSBYHOVED BROBY
2 Dobbelhuse, altså fire boliger på 98m². Den eksisterende bolig på 140m², er lejet ud til den tidligere ejer af matriklen.
Boligerne ligger helt ugenert for naboer og både haven og terrassen er placeret helt korrekt i forhold til solens orientering og en smuk udsigt mod byens kirke
Boligerne har deres egne parkeringspladser, samt depotrum.
Sømarksvej 2-2B, Søndersø
Et dobbelthus central beliggende i Søndersø med kort afstand, via stisystem, til indkøb og byens øvrige udvalg af butikker, skoler mm. Boligerne ligger helt ugenert for naboer og både haven og terrassen er placeret helt korrekt i forhold til solens orientering.
Boligerne har deres egne parkeringspladser, samt depotrum.
Bogensevej 355-357B, NÆSBYHOVED BROBY
Bogensevej 355-357 i Næsbyhoved Broby. Et nyopført dobbelthuse med 2 boliger på 98 m² + nyt opført énfamiliebolig på 110m².
Boligerne har deres egne parkeringspladser, samt depotrum.
Placeret lige midt i byen med adgang til skole, børnehave og idrætsforening / sportsplads via stisystem.
Spurvelundsvej 8, NÆSBYHOVED BROBY
Velindrettet villa på 110m² + fuld kælder og egen garage. Til huset hører en terrasse, samt stor flot have.
Huset er placeret på stille villa vej lige ved siden af den lokale skole+ børnehave, og sportplads. Bustoppested lige udenfor døren!
Snerlevænget 1, Tørresø Strand
Skønt lille hus på 60m² i 2 plan, blot 20 meter fra en fyens bedste badestrande.
Fra huset er der et fantastisk udsyn til kattegat og over markerne mod syd. Den store terrasse på huset 3 sider, gør at der og sol og udsigt hele dagen!
Nordfyns bedste badestrand med badebro og fantastisk solnedgang!
Lad os tage en snak
Få mere at vide om vores boliger
Du er altid velkommen til at ringe eller skrive til os – eller udfyld vores formular.
- Moderne boliger på Fyn – gennemtænkt kvalitet fra projekt til udlejning
- Erfaring fra arkitekttegnestue sikrer design, funktion og høj standard
- Fynske rækkehuse og lejligheder udviklet med fokus på kvalitet og beliggenhed
Er du interesseret i at høre nærmere omkring en bolig eller projekt? Vi er til enhver tid klar til at tage en snak med dig. Udfyld vores formular, og få en snak med os om hvordan vi kan hjælpe netop dig.